今回ご紹介するのは
LDK+和室+専用の屋上つき物件!
30坪の広さもあり、とにかく日当たりがいいんです◎
場所は、沖縄市山里。
球陽高校すぐ近くの通り沿いで、銀行や病院、イオンライカムへも車で5分の距離。
″生活が回る″という言葉がよく似合う立地です。
外階段を登って、目指すは2階。
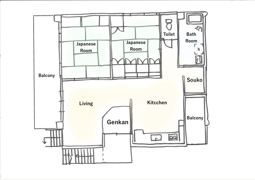
玄関から入ると、自然光に照らされたリビングと和室。
和室は、障子でお部屋を仕切ることができますので、プライベート空間の確保は可能。
また、リビングの先にキッチンがあります。
個人的に、昔のナショナルのキッチン、大好きなんですよね〜
今はツヤっとした質感のキッチンが主流ですが、木材を使用した、少々アメリカンを感じるデザインがたまりません。
オーナーさんはお掃除が得意だったようで、長年大切に使われていたのが伝わります。
水回りは、浴室・洗濯機置き場・洗面台が同じ空間に集約されています。
お部屋の面積をしっかり確保しつつ、生活の動線を踏まえた設計だと思います。
そして面白いのが、冒頭でもお伝えした、
専用の屋上があるんです〜!
遠くに海が見えて、緑も見えて、そこに街もある。
築年数なりのダメージはもちろんありますが、日当たりが良いお家は、空気がカラッとしていて気持ちが良いです。
お祭りの花火も、綺麗に見えるそうですよ・・
しかし、一つ残念なのは、駐車場がございません。
車を利用する方は、近隣で駐車場を借りる必要があります(競争率高め)
ここでの暮らしもイメージできますが、近くに学校が多いので「学習塾」なんかおすすめです
エアコンも3台ありますので、初期費用を抑えつつ、事業を始められそう。
もちろん!その他、業種もご相談可能です。
太陽の光と、商い(飽きない)暮らし。
グッときた方、お問い合わせをお待ちしております!
text:Eri
- 賃貸 太陽のひかり、商い暮らし。
- 住居か、塾か・・他には何が似合う?
- 【貸アトリエ・スタジオ】 , 【貸事務所】 , 【貸店舗】 NEW
- 沖縄市山里
- 賃料:120,000円
- 間取り:LDK+和室(104.96㎡)+専用屋上
- 共益費
- ナシ
- 駐車場
- ナシ
- 敷金
- 賃料の1ヶ月分
- 礼金
- 賃料の1ヶ月分
- 仲介手数料
- 賃料の1ヶ月分+消費税
- 家賃保証
- 住居(賃料50%〜)事業用(賃料100%)
- 火災保険
- 要加入
- 設備
- ・エアコン3台(残置物)
・給湯:ボイラー
・ガスコンロ
・プロパンガス
・独立洗面台
- 備考
- ・定期借家契約2年
・築年月日:平成3年1月(築34年)
・構造:鉄筋コンクリート造3階建(2階部分)3F・1F賃貸中。
・ペット不可
・民泊不可
・学校区:山内小学校・山内中学校
・事業用との場合は賃料+消費税
- 現況
- 空家
- 取引形態
- 媒介
